
LCT-DW雙聲道超聲流量計由流量計表體、超聲換能器及其安裝部件、信號電纜、測量主機組成,可與外界配對溫度傳感器和壓力變送器組成熱量計量系統,適用于熱水供熱或冷量計量系統等的流量計量和熱能量計量。
流量計采用高速混合信號處理CPU設計,配備皮秒級別的高精度時間測量系統,動態響應速度快,使流速測量的準確度和重復性更高,穩定性更好。
傳感器部分采用雙聲道超聲波設計,分別測量管道內不同流體層的速度,由軟件自動補償計算管段內的面流速,同時具備兩個聲道互為備用的功能,當一個聲道有故障,另一聲道能保證正常工作。超聲換能器具備不停流維護和更換功能,不用配置專用球閥和插拔裝置。
儀表內部具有溫度補償電路和溫度補償軟件算法,比其他流量傳感器適合供熱高溫水計量,保證不同溫度下流量測量的精度。配對溫度傳感器經過精心挑選、配對,溫度特性一致、溫差測量準確。

1、雙聲道超聲流量計產品執行標準 CJ/T3063-1997 JJG1030-2007;
2、測量準確度:0.5級;
3、128*64工業液晶屏顯示,中文菜單;
4、輸入信號:4路超聲波信號,4路鉑電阻信號,4路電流信號;
5、通訊接口:RS232/485,標準MODBUS協議;
6、輸出信號:脈沖(0-5000)Hz,電流(4-20)mA;
7、工作電壓:AC:220V±10%,DC:12V/0.5A;功耗:小于5W;
8、工作環境:溫度:(-10~60)℃,濕度(5-85)%RH(不結露);
9、公稱壓力:1.6MPa;
10、流量范圍:
采用超聲波時差式測量原理。超聲波信號在流體中傳播時,順流時信號傳播速度增加,傳播時間減小;逆流時信號傳播速度減小,傳播時間增加,從而順逆流方向聲波信號傳播時間存在差值(即時差)。時差法超聲流量傳感器就是根據介質的流速與時差存在線性關系原理進行測量的,只要準確測定順逆流時間,根據流速與其線性關系,可以求出瞬時流速,進而可以求出瞬時流量。
雙聲道超聲流量傳感器在流量的斷面上布設了多對傳感器,通過精確地測量各聲道上超聲波沿水流順向及逆向傳播的時差,用加權積分的方法計算出流量,其原理如上圖所示。由于大口徑管道內各點的流速是不同的,如果用1個點的流速計算流量,誤差往往很大。應用雙聲道超聲流量計就解決了這一難題,并大大地提高了流量的測量準確度。

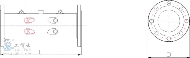
4.1 流量傳感器尺寸

4.2 選擇測量點:
超聲流量計在所有流量計的安裝中是*簡單便捷的。只要選擇一個合適的測量點、把測量點處的管道參數輸入到流量計中,把傳感器安裝在管道上即可進行測量。
選擇測量點時要求選擇流體流場分布均勻的管段部分,以保證測量精度。安裝時,應遵循以下原則:
選擇充滿流體的管段,如管路的垂直部分(流體*好向上流動)或充滿流體的水平管段。

測量點要選擇距上游10倍直徑(10D)、下游5倍直徑(5D)以內的均勻直管段,該范圍內沒有任何閥門、彎頭、變徑等干擾流場的裝置。如測量點前有泵、T形三通、調節閥、節流孔、漸擴管段或其它會引起旋轉流的裝置,要求其上游直管段為20倍直徑(20D)。在水平管段上,傳感器一般安裝在管道的9點、3點鐘(水平)位置。
應避開6點、12點(垂直)的位置,以免管道底部沉淀物或管道上部的氣泡、氣穴引起信號的衰減。
要保證測量點處的溫度在工作范圍以內。